01.203 Fucoli slussventil serie 3000 med fläns F5, för elektrisk aktuator PN10/16
Fucoli-Somepal slussventil. Med fläns; lång bygglängd F5; för elektrisk aktuator; fritt genomlopp.
Fördelar
- Fullt vulkanizerad kägla med fixerad spindelmutter
- Spindelmutter CW617N (accepterad UBA lista)
- 4 spindeltätningar för att säkerställa lång hållbarhet
- Fritt genomlopp
- Stängning lägre än standard
- Försänkta bultar som är skyddade med smältmassa
- Kamring som fixerar spindel och ger låga stängningsmoment
- Blå för vatten (EPDM)Rödbrun för avlopp (NBR) Finns även för gas
Dokument och länkar
Fucoli-Somepal 01.203 slussventiler
med fläns, för elektrisk aktuator PN 10/16
|
RSK nr.EPDM
|
RSK nr.NBR
|
DN
|
Fläns-borrning
|
Dmm
|
Lmm
|
Hmm
|
H1mm
|
H2mm
|
Kmm
|
Ansl.ISO5210
|
D1mm
|
D2mm
|
a1mm
|
a2mm
|
Hmm
|
Varv
|
MaxNm
|
Viktkg
|
Varukorg
|
|---|---|---|---|---|---|---|---|---|---|---|---|---|---|---|---|---|---|---|---|
|
4417308
|
4376487
|
40
|
16-okt.
|
150
|
240
|
207
|
177
|
282
|
110
|
F10
|
125
|
102
|
20
|
6
|
30
|
10
|
25
|
11
|
|
|
4417310
|
4376488
|
50
|
16-okt.
|
1 65
|
250
|
238
|
208
|
321
|
125
|
F10
|
125
|
102
|
20
|
6
|
30
|
13
|
25
|
13
|
|
|
4417311
|
4376489
|
60
|
16-okt.
|
175
|
270
|
250
|
217
|
338
|
135
|
F10
|
125
|
102
|
20
|
6
|
33
|
13
|
30
|
15
|
|
|
4417312
|
4376490
|
65
|
16-okt.
|
185
|
270
|
250
|
217
|
343
|
145
|
F10
|
125
|
102
|
20
|
6
|
33
|
16
|
30
|
15
|
|
|
4417313
|
4376491
|
80
|
16-okt.
|
200
|
280
|
286
|
253
|
386
|
160
|
F10
|
125
|
102
|
20
|
6
|
33
|
20
|
40
|
20
|
|
|
4417314
|
4376492
|
100
|
16-okt.
|
220
|
300
|
325
|
286
|
435
|
180
|
F10
|
125
|
102
|
20
|
6
|
39
|
25
|
50
|
24
|
|
|
4417315
|
4376493
|
125
|
16-okt.
|
250
|
325
|
362
|
323
|
487
|
210
|
F10
|
125
|
102
|
20
|
6
|
39
|
30
|
60
|
30
|
|
|
4417316
|
4376494
|
150
|
16-okt.
|
285
|
350
|
425
|
384
|
568
|
240
|
F10
|
125
|
102
|
20
|
6
|
41
|
34
|
75
|
44
|
|
|
4417318
|
4376495
|
200
|
10
|
340
|
400
|
505
|
459
|
683
|
295
|
F10
|
125
|
102
|
20
|
6
|
46
|
34
|
100
|
59
|
|
|
4417319
|
4376496
|
200
|
16
|
340
|
400
|
505
|
459
|
683
|
295
|
F10
|
125
|
102
|
20
|
6
|
46
|
42
|
100
|
59
|
|
|
4417320
|
4376497
|
250
|
10
|
400
|
450
|
595
|
545
|
805
|
350
|
F14
|
175
|
140
|
30
|
8
|
50
|
42
|
125
|
98
|
|
|
4417321
|
4376498
|
250
|
16
|
400
|
450
|
595
|
545
|
805
|
355
|
F14
|
175
|
140
|
30
|
8
|
50
|
50
|
125
|
98
|
|
|
4417322
|
4376499
|
300
|
10
|
455
|
500
|
670
|
620
|
898
|
400
|
F14
|
175
|
140
|
30
|
8
|
50
|
50
|
150
|
137
|
|
|
4417323
|
4376500
|
300
|
16
|
455
|
500
|
670
|
620
|
898
|
410
|
F14
|
175
|
140
|
30
|
8
|
50
|
57
|
150
|
137
|
|
|
4417324
|
4376501
|
350
|
10
|
505
|
550
|
940
|
875
|
1193
|
460
|
F14
|
175
|
140
|
30
|
8
|
65
|
57
|
175
|
257
|
|
|
4417326
|
4376502
|
350
|
16
|
520
|
550
|
940
|
875
|
1200
|
470
|
F14
|
175
|
140
|
30
|
8
|
65
|
57
|
175
|
261
|
|
|
4417354
|
4376503
|
400
|
10
|
5 65
|
600
|
940
|
875
|
1223
|
515
|
F14
|
175
|
140
|
30
|
8
|
65
|
57
|
200
|
280
|
|
|
4417355
|
4376504
|
400
|
16
|
580
|
600
|
940
|
875
|
1230
|
525
|
F14
|
175
|
140
|
30
|
8
|
65
|
57
|
200
|
283
|
|
Arbetstemperatur: 0-70°C (ej frost)
Standarder:
Designad enl. EN 1074 del 1 & 2 och EN 1171
Flänsar enligt EN 1092-2 PN10/16
Bygglängd enl EN 558 F4
ISO top fläns enl ISO 5210
På förfrågan:
Spindel i andra kvaliteter
Större slussventiler
Tillverkad i Europa
15 års garanti
|
|
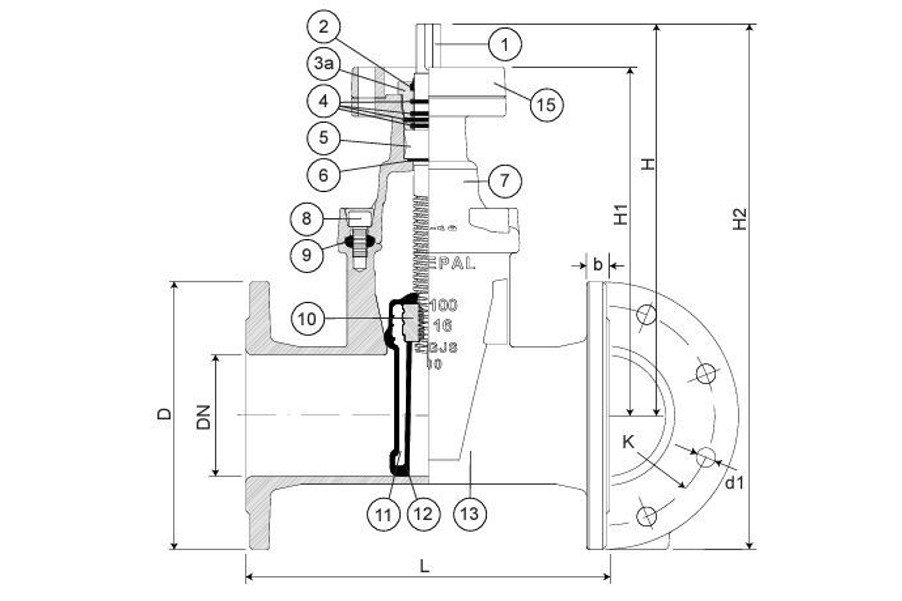
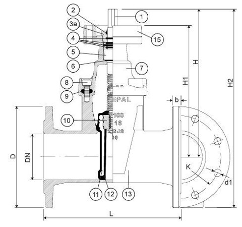
Komponent
|
Material BLÅ/RÖDBRUN
|
Standard
|
|---|---|---|---|
|
1
|
Spindel
|
Syrafast spindel med rullade gängor 1.4404
|
EN 10088-1
|
|
2
|
Avstrykarring
|
Elastomer
|
|
|
3
|
Övre spindelmutter
|
Mässing
|
EN 12164
|
|
4
|
O-ring
|
Elastomer EPDM/NBR
|
EN 681-1
|
|
5
|
Spindelmutter
|
Fixerad spindelmutter av avzinkningshärdig mässing (CuZn36Pb3)
|
EN 12164
|
|
6
|
O-ring
|
Elastomer EPDM/NBR
|
EN 681-1
|
|
7
|
Överdel
|
Segjärn EN-GJS-500-7
|
EN 1563
|
|
8
|
Bultar
|
Rostfritt stål A2
|
EN 10088-1
|
|
9
|
Överdel packning
|
Utblåsningssäker EPDM/NBR
|
EN 681-1
|
|
10
|
Spindelmutter
|
Mässing
|
EN 12164
|
|
11
|
Kägla
|
Segjärn EN-GJS-500-7
|
EN 1563
|
|
12
|
Beläggning kägla
|
Fullt vulkaniserad EPDM/NBR
|
EN 681-1
|
|
13
|
Ventilhus
|
Segjärn EN-GJS-500-7
|
EN 1563
|
|
14
|
Lager
|
Stål
|
ISO 20516
|
|
15
|
Fläns
|
Segjärn EN-GJS-500-7
|
EN 1563
|
Standarder och godkännanden
-
ACS
-
GSK
-
-