
Hymax montageboxar
Marknadens enklaste och mest effektiva montagebox. Upp till 60% färre bultar än standard.
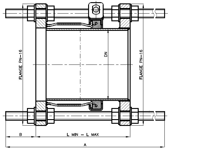
Montering/demontering och justering görs med enkla steg. Hymax montagebox har med sin dubbelverkande packning mycket goda mekaniska och hydrauliska tätningsegenskaper. IBECO montageboxar för högre tryck finns mot förfrågan.
Fördelar
- Enkel, snabb och effektiv montering
- Justerbar:
DN80-150: ± 40 mm
DN200-600: ± 65 mm
DN700-1000: ± 40 mm
Dokument och länkar
Hymax montageboxar
Art.nr.
|
DN
|
Tryck-klass
|
L minmm
|
L maxmm
|
Arbetstryckbar
|
MaxNm
|
Amm
|
Bmm
|
Bultantal x dim
|
Viktkg
|
Varukorg
|
---|---|---|---|---|---|---|---|---|---|---|---|
348 18 09
|
80
|
PN10/16
|
210
|
290
|
16
|
45
|
430
|
70
|
2 x M16
|
11,5
|
|
348 18 10
|
100
|
PN10/16
|
210
|
290
|
16
|
45
|
430
|
70
|
2 x M16
|
14
|
|
348 18 11
|
125
|
PN10/16
|
210
|
290
|
16
|
60
|
430
|
70
|
2 x M16
|
18
|
|
348 18 12
|
150
|
PN10/16
|
220
|
300
|
16
|
60
|
450
|
70
|
4 x M20
|
23,5
|
|
348 18 13
|
200
|
PN10
|
270
|
400
|
10
|
80
|
570
|
80
|
4 x M20
|
48
|
|
348 18 14
|
200
|
PN16
|
270
|
400
|
16
|
80
|
570
|
80
|
4 x M20
|
34,5
|
|
348 18 15
|
250
|
PN10
|
270
|
400
|
10
|
80
|
570
|
80
|
4 x M20
|
59
|
|
348 18 16
|
250
|
PN16
|
280
|
410
|
16
|
80
|
600
|
80
|
4 x M24
|
48
|
|
348 18 17
|
300
|
PN10
|
280
|
410
|
10
|
80
|
570
|
80
|
4 x M20
|
68,5
|
|
348 18 18
|
300
|
PN16
|
300
|
430
|
16
|
80
|
600
|
80
|
4 x M24
|
54
|
|
348 18 19
|
350
|
PN10
|
290
|
420
|
10
|
80
|
600
|
85
|
4 x M20
|
70
|
|
348 18 20
|
350
|
PN16
|
300
|
430
|
16
|
80
|
600
|
85
|
4 x M24
|
60
|
|
348 18 21
|
400
|
PN10
|
360
|
490
|
10
|
100
|
700
|
100
|
4 x M24
|
83,5
|
|
348 18 22
|
400
|
PN16
|
370
|
500
|
16
|
100
|
700
|
100
|
4 x M27
|
100
|
|
348 18 23
|
450
|
PN10
|
360
|
490
|
10
|
100
|
700
|
100
|
4 x M24
|
95
|
|
348 18 24
|
450
|
PN16
|
370
|
500
|
16
|
100
|
700
|
100
|
4 x M27
|
200
|
|
348 18 25
|
500
|
PN10
|
360
|
490
|
10
|
100
|
700
|
100
|
4 x M24
|
119,5
|
|
348 18 26
|
500
|
PN16
|
380
|
510
|
16
|
100
|
730
|
110
|
4 x M30
|
220
|
|
348 18 27
|
600
|
PN10
|
370
|
500
|
10
|
130
|
700
|
100
|
4 x M27
|
156,5
|
|
348 18 28
|
600
|
PN16
|
410
|
540
|
16
|
130
|
780
|
120
|
4 x M33
|
250
|
|
348 18 29
|
700
|
PN10
|
300
|
380
|
10
|
300
|
600
|
110
|
8 x M27
|
206
|
|
348 18 30
|
700
|
PN16
|
350
|
430
|
16
|
300
|
700
|
130
|
8 x M33
|
260
|
|
348 18 31
|
800
|
PN10
|
320
|
400
|
10
|
300
|
650
|
120
|
8 x M30
|
277
|
|
348 18 32
|
800
|
PN16
|
360
|
440
|
16
|
300
|
720
|
140
|
8 x M36
|
300
|
|
348 18 33
|
900
|
PN10
|
330
|
410
|
10
|
400
|
650
|
120
|
8 x M30
|
311
|
|
348 18 34
|
900
|
PN16
|
380
|
460
|
16
|
400
|
760
|
150
|
8 x M36
|
330
|
|
348 18 35
|
1000
|
PN10
|
350
|
430
|
10
|
400
|
720
|
140
|
8 x M33
|
344
|
|
348 18 36
|
1000
|
PN16
|
400
|
480
|
16
|
400
|
820
|
170
|
8 x M39
|
360
|
|
Material:
Stål
Packning: EPDM
Bult: rostfri 1.4301 ytbehandlad mot skärning
På förfrågan: Andra tryckklasser
Standarder:
Stål S235JR
EN 10025-2 (DIN 17100)
EPDM 681-1
Epoxybeläggning enligt DIN 30677-2
Standarder och godkännanden
-
GSK